熊谷市拾六間1期 中古戸建

2,199万円

埼玉県熊谷市拾六間

高崎線「籠原」駅徒歩34分

高崎線「深谷」駅徒歩46分

秩父鉄道「明戸」駅徒歩57分

価格
2,199万円
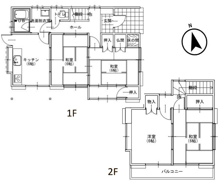
間取り/建物面積
4DK/76.17㎡
所在地
埼玉県熊谷市拾六間
築年
1987年5月(築38年)
駐車
有(2台)
交通

高崎線籠原」駅 徒歩34分

高崎線深谷」駅 徒歩46分

秩父鉄道明戸」駅 徒歩57分

熊谷市拾六間1期 中古戸建の基本情報

物件名
熊谷市拾六間1期 中古戸建
価格
2,199万円
建物面積
76.17㎡
土地面積
50.11坪(165.66㎡)
築年月
1987年5月(築38年)
総戸数
-
所在地
埼玉県熊谷市拾六間
交通

高崎線籠原」駅 徒歩34分

高崎線深谷」駅 徒歩46分

秩父鉄道明戸」駅 徒歩57分

熊谷市拾六間1期 中古戸建の詳細情報

設備条件
  • 駐車2台可
設備(その他)
    公営水道 本下水 都市ガス
駐車場/月額
有(2台)/0円
土地権利
所有権
国土法届出
不要
用途地域
第一種低層住居専用
取引態様
仲介
引渡し
相談
備考
ぜひ一度見ていただきたい、「熊谷市拾六間 中古戸建」です◎こちらの中古戸建て物件は、子育ての環境としてもうってつけです◎1年を通して日が入りやすい東南側の道路に面する物件です◎不動産について何かお困りのことなどがございましたら、高崎線籠原周辺の地域に強い当社スタッフまでお問い合わせください(*^_^*)

熊谷市拾六間1期 中古戸建のコメント(おすすめポイント)

◆2台駐車可能なスペース完備
ゆとりの広さの前面道路に面しているので駐車しやすく安心♪

熊谷市拾六間1期 中古戸建で募集中の物件

  1. 23.04坪 (76.17㎡)

    2,199万円(43.88万円/坪)

周辺施設

  • 食彩館マルシェ籠原店の画像

    スーパー

    食彩館マルシェ籠原店

    320m(4分)

  • セブンイレブン 熊谷ちゃうり通り店の画像

    コンビニエンスストア

    セブンイレブン 熊谷ちゃうり通り店

    370m(5分)

  • ローソン 熊谷新堀新田店の画像

    コンビニエンスストア

    ローソン 熊谷新堀新田店

    600m(8分)

  • ベルク かごはら南店の画像

    スーパー

    ベルク かごはら南店

    800m(10分)

  • 籠原小学校の画像

    小学校

    籠原小学校

    1100m(14分)

  • 籠原病院の画像

    総合病院

    籠原病院

    1300m(17分)

  • 三尻中学校の画像

    中学校

    三尻中学校

    2300m(29分)

近隣の物件

  1. 熊谷市赤城町1丁目

    4LDK (98.01㎡)

    2,880万円

  2. 熊谷市末広4丁目

    3LDK (102.68㎡)

    3,790万円

  3. 熊谷市原島

    4LDK (95.58㎡)

    2,280万円

  4. 熊谷市久保島

    4LDK (98.82㎡)

    2,780万円

よく見られている物件

  1. 熊谷市末広3丁目

    10LDK+2S(納戸) (258.20㎡)

    3,900万円

  2. 深谷市原郷

    3LDK+S(納戸) (110.60㎡)

    2,580万円

  3. 深谷市東方

    4LDK+S(納戸) (140.08㎡)

    5,300万円

  4. 深谷市田所町

    4LDK (110.95㎡)

    3,090万円

熊谷市拾六間1期 中古戸建

お気軽にお問い合わせください

無料お問い合わせ

いえむすび不動産

048-580-4088

-

(休:水曜日)